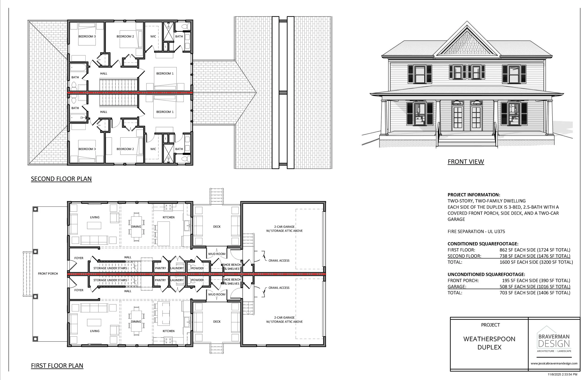
The Weatherspoon Duplex
3,200 (1600 ES) Conditioned SF | 1,406 (703 ES) Unconditioned SF
4,606 Total Covered SF
3-Bed, 2.5-Bath, Two-Car Garage on Each Side
Plan Information:
Conditioned Squarefootage: 1,600 ES - 3,200 Total
Beds: 3 Each Side
Baths: 2.5 Each Side
Covered Porch? Y
Fireplace? N
Garage? Y
Exterior Storage? N
Other Amenities: Mudroom, Pantry
