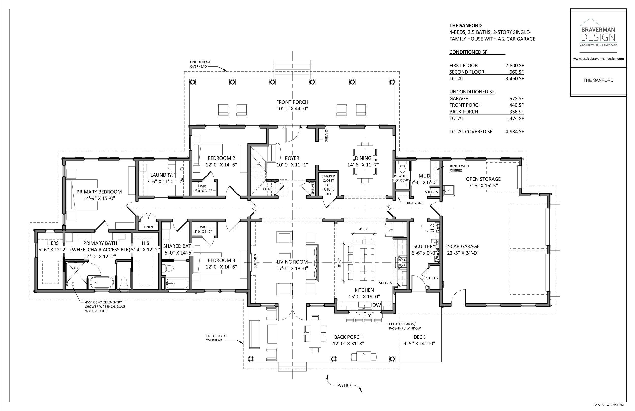
The Sanford
3,460 Conditioned SF | 1,474 Unconditioned SF
4,934 Total Covered SF
4-Bed, 3.5-Bath, ADA Compliant Single Family Home with a 2-Car Garage
Plan Information:
Conditioned Squarefootage: 3,460
Beds: 4
Baths: 3.5
Covered Porch? Y - Front & Back Porches
Fireplace? N
Garage? Y
Exterior Storage? Y
Other Amenities: Mud Room, Scullery, Laundry Room, Primary Suite, Guest Suite, Bonus Room, Fully ADA compliant with stacked closets for a future elevator
          
          
        
      