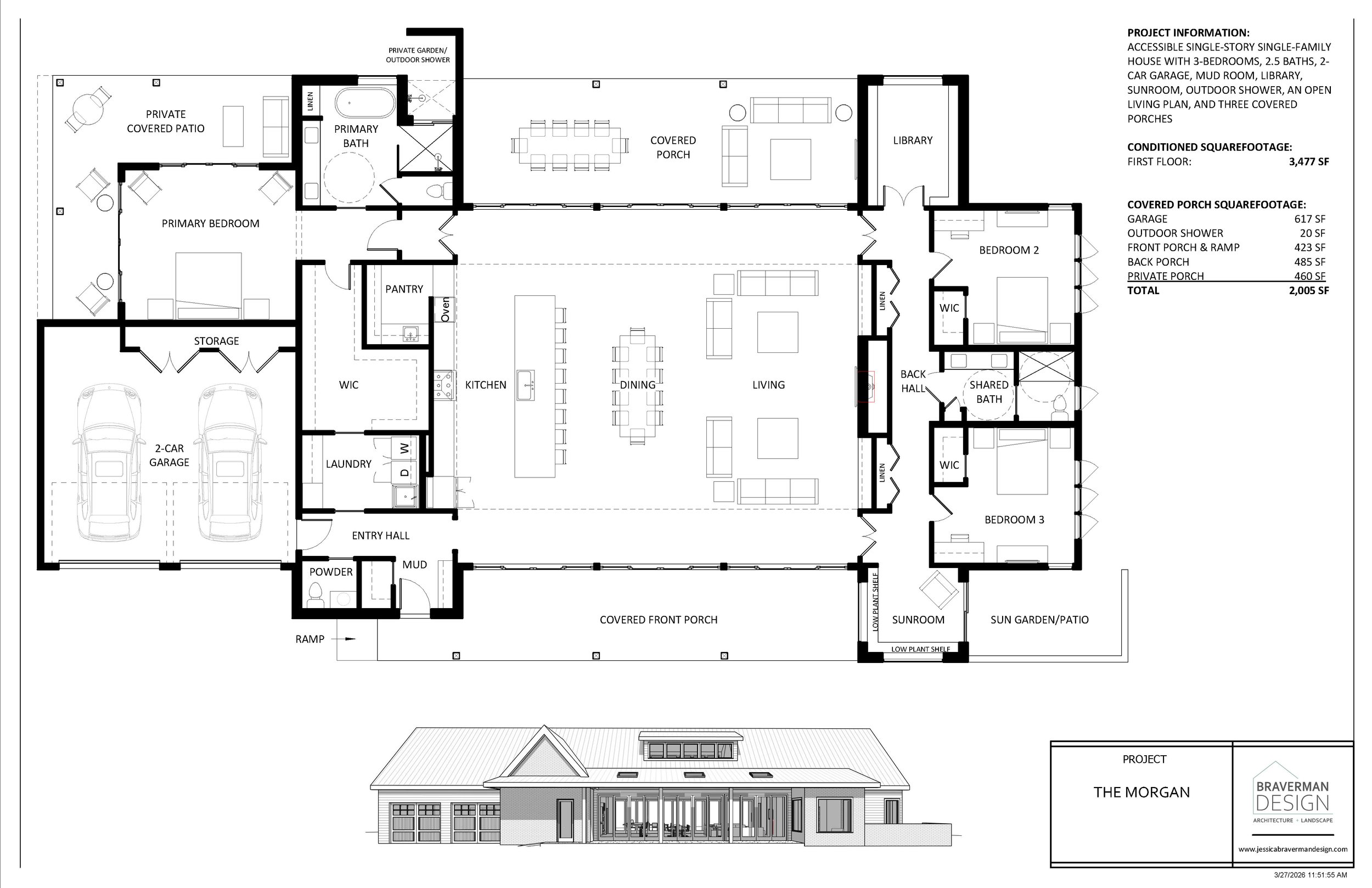
The Morgan
3,477 Conditioned SF | 2,005 Unconditioned SF
5,483 Total Covered SF
3-Bed, 2.5-Bath, One-Story Accessible Single Family Home with a 2-Car Garage, Mudroom, Library, Sunroom, 3 Covered Porches, and Outdoor Shower
Plan Information:
Conditioned Squarefootage: 3,477 sf
Beds: 3
Baths: 2.5
Covered Porch? Yes
Fireplace? Y
Garage? Y
Exterior Storage? N
Other Amenities: Walk-in-Pantry, Mudroom, Sunroom, Library, Outside Shower
