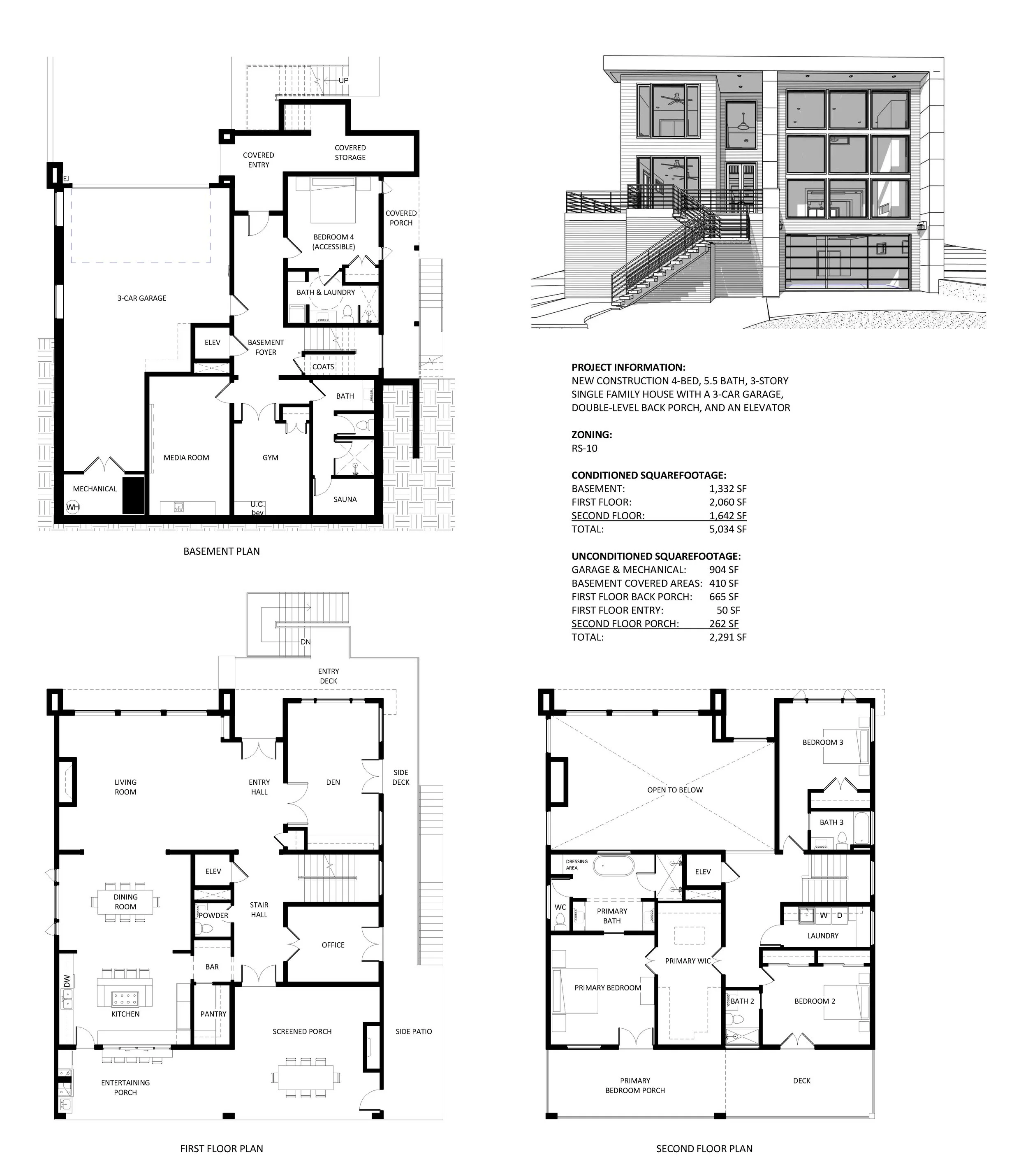
The Surrey
5,034 Conditioned SF | 2,291 Unconditioned SF
7,325 Total Covered SF
4-Bed, 5.5-Bath, 3-Story Single Family Home with a 3-Car Garage, Gym, Media Room, Sauna, Elevator, and Outdoor Kitchen
Plan Information:
Conditioned Squarefootage: 5,034 sf
Beds: 4
Baths: 5.5
Covered Porch? Y
Fireplace? Y
Garage? Y
Exterior Storage? N
Other Amenities: Pantry, Mudroom, Office, Den, ADA Guest Suite, Gym, Sauna, Media Room, Elevator, Private Porch & Deck, Outdoor Kitchen, Outdoor Fireplace
